Roma – Eur: In via Kenia, una delle vie residenziali più discrete ed esclusive dell’Eur, proponiamo in vendita una villa di circa 300 mq coperti circondata da aree scoperte e giardini terrazzati e alberati per circa 1.000 mq, con un garage doppio di circa 70mq.
La villa, con categoria catastale A/7, si sviluppa su 3 livelli tutti fuori terra, con il suo viale d’ingresso indipendente affaccia su via Kenia e sebbene parte di una tri-familiare a trifoglio, risulta molto riservata , avendo tutti gli affacci sulle proprie aree verdi.
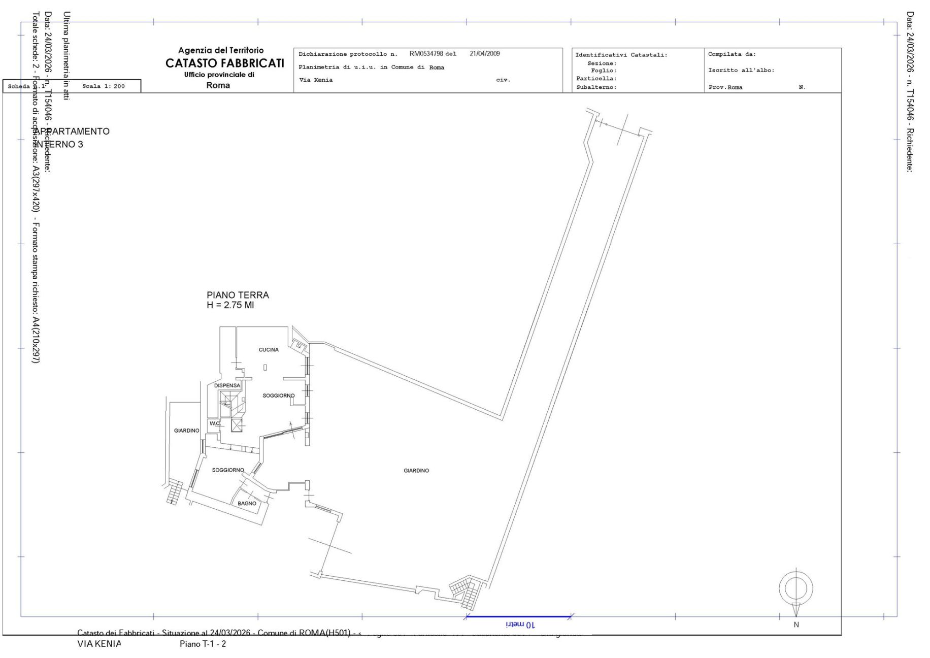
Al piano terra si trova il salone doppio, con annessa saletta cinema, un acquario mediterraneo di grandi dimensioni ed un’ampia ed accessoriata cucina, separata da grandi scorrevoli in vetro serigrafato, la dispensa, il locale tecnico e due bagni.
Al primo piano troviamo un salone con ampie vetrate che immettono direttamente sulla terrazza e sul giardino; due camere, di cui una singola ed una suite con bagno con relativa cabina armadio; un ulteriore bagno.
Al secondo piano, una suite con doppia cabina armadio, bagno con vasca idromassaggio, cabina doccia Hammam con idro e cromoterapia.
Il viale d’accesso alla villa, pavimentato in porfido e travertino romano, conduce all’ingresso principale a al garage doppio. Negli ampi giardini, attrezzati, troviamo divani e vasca idromassaggio, forno a legna “Fontana” ed un barbecue.
Valorizzati da un ulivo secolare, alberi e piante ornamentali, gli spazi verdi sono dotati di sistemi di irrigazione ed una illuminazione molto curata, e lungo l’intero perimetro alberi ad alto fusto a tutela della massima privacy.
Gli arredi interni, sono stati disegnati a misura e realizzati in teak, rovere sbiancato e naturale.
La villa è stata costruita nel 1968, e l’unica e completa ristrutturazione è del 2008. In questa fase sono state adottate tecnologie di livello superiore, sia per gli impianti idraulici che elettrici, la villa è stata dotata di riscaldamento radiante a pavimento, impianti di climatizzazione e aspirapolvere centralizzata ad ogni livello, tende oscuranti elettrificate, domotica, avanzatissimi sistemi di sicurezza ed un ascensore multipiano.
La ristrutturazione è avvenuta attraverso la scelta di materiali di pregio, che ne connotano lo stile essenziale e la altissima qualità, come ad esempio la pavimentazione realizzata in listoni di rovere su tutta la superficie, resina e lastre di travertino in falda e blocchi per la scala. La notevole luminosità è dovuta alle ampie superfici vetrate, realizzate con infissi in massello di rovere sbiancato, con vetri ad alto isolamento termico e alluminio all’esterno.
Le porte sono in legno a filomuro, con maniglie di design della Olivari, come gli infissi.
Nel rifacimento del tetto sono state fatte scelte architettoniche e funzionali di qualità con l’uso di materiali quali acciaio inox per tutte le gronde e tegole di Ardogress simili all’ardesia.
Il contesto abitativo della zona è di alto livello, vi sono già diverse sedi di rappresentanza e la villa si presta per prestigio e sicurezza anche ad un’eventuale residenza diplomatica.
Nota: I contenuti del presente annuncio sono inseriti con cura, tuttavia non si garantisce che non vi possano essere errori, imprecisioni od omissioni nelle informazioni, che pertanto devono ritenersi di natura puramente indicativa, e non costituiscono presupposto né carattere contrattuale.
Prezzo Richiesto: 2.300.000 euro
Per informazioni: info@vienove.it
oppure usare modulo Richiesta Informazioni a fianco, sopra la mappa >>
ENGLISH
Rome – EUR: On Via Kenia, one of the most secluded and exclusive residential streets in the EUR district, we are offering for sale a villa of approximately 300 square metres of internal floor space, surrounded by open-air areas and terraced, tree-lined gardens covering approximately 1,000 square metres, with a double garage of approximately 70 square metres.
The villa, with cadastral category A/7, is spread over 3 levels, all above ground, with its independent entrance avenue overlooking Via Kenia and although part of a three-family clover-shaped building, it is very private, having all the views of its own green areas.
On the ground floor, there is a double living room with an adjoining cinema room, a large Mediterranean aquarium, and a spacious, fully equipped kitchen, separated by large, screen-printed sliding glass doors. There is also a pantry, a utility room, and two bathrooms.
On the first floor, there is a living room with large windows opening directly onto the terrace and garden; two bedrooms, one single and one suite with en-suite bathroom and walk-in wardrobe; and a further bathroom.
On the second floor, a suite with double walk-in closet, bathroom with whirlpool tub, Hammam shower cabin with hydro and chromotherapy.
The driveway leading to the villa, paved in porphyry and Roman travertine, leads to the main entrance and the double garage. In the spacious gardens, equipped for outdoor living and relaxation, there are sofas and a hot tub, a ‘Fontana’ wood-fired oven and a barbecue.
Enhanced by a centuries-old olive tree, ornamental trees and plants, the green spaces are equipped with irrigation systems and carefully designed lighting, whilst tall trees line the entire perimeter to ensure maximum privacy.
The interior furnishings were custom-designed and crafted from teak, bleached oak, and natural oak.
The villa was built in 1968, and the only complete renovation took place in 2008. During this phase, state-of-the-art technologies were adopted for both the plumbing and electrical systems; the villa was fitted with underfloor radiant heating, air-conditioning systems and a central vacuum system on every level, electric blackout blinds, home automation, cutting-edge security systems and a multi-storey lift.
The renovation was carried out using high-quality materials, which define the minimalist style and exceptional quality, such as the oak plank flooring throughout, resin and travertine slabs on the floor, and blocks for the staircase. The remarkable brightness is achieved through the large windows, featuring solid bleached oak frames with high-insulation glass and aluminum exteriors. The doors are flush-fitting, with Olivari designer handles, as are the fixtures.
The roof renovation focused on high-quality architectural and functional choices, using materials such as stainless steel for all the gutters and slate-like Ardogress tiles.
The living environment in the area is high-quality. There are already several representative offices, and the villa could be an ideal diplomatic residence due to its prestige and security.
Note: All contents of this announcement are inserted with care, however it is not guaranteed that there may not be errors, inaccuracies or omissions in the information, which therefore must be considered indicative in nature and do not constitute a prerequisite or contractual character
Price Required: 2.300.000 euro
Further information beyond that published is subject to qualified negotiation and confidential.
For information: info@vienove.it
or use the Information Request form next to, above the map >>
