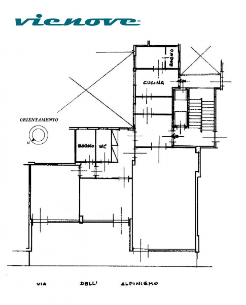
Roma, Farnesina: in via dell’Alpinismo, in un elegante condominio con servizio di portierato, proponiamo un signorile appartamento di circa 170mq coperti, con un balcone ed un terrazzo di circa 46mq. L’immobile si trova al 5° piano di una palazzina di 6 piani. L’appartamento dispone di due ingressi, ognuno dei quali è raggiungibile da un proprio ascensore, e doppia esposizione, con affacci su un parco di via dell’Alpinismo e su una chiostrina interna.
L’appartamento, al momento è composto da un ingresso, un salone doppio di 60mq ca, una cucina abitabile, 2 stanze matrimoniali, 1 stanza di servizio, 2 bagni, di cui uno con vasca e l’altro con doccia, un bagno di servizio, un corridoio con armadi a muro ed un piccolo disimpegno. Completano l’immobile un posto auto doppio di circa 25mq recentemente ristrutturato ed una cantina di 7mq ca.
L’immobile è da ristrutturare e si presta a diverse ridistribuzioni degli spazi interni. Per quanto riguarda le finiture gli infissi sono nuovi, in alluminio e doppi vetri nel lato sud dell’appartamento, corrispondente alla cucina, la camera di servizio e i tre bagni, mentre sono in legno nel lato nord, corrispondente al salone e le due camere da letto; i pavimenti sono in parquet, parzialmente ricoperto da moquette, cotto in cucina e maioliche nei servizi; le porte sono blindate e l’appartamento è provvisto di antifurto. Il riscaldamento è centralizzato con i contacalorie ed è presente l’aria condizionata nelle camere da letto.
Le spese condominiali ammontano a circa 250 €/mese. Classe energetica: G
Nelle immediate vicinanze è possibile trovare tutti i servizi di maggiore utilità, quali scuole (il Liceo Scientifico Farnesina è a 100m di distanza), supermercati, farmacie, posta, banca, piscine, centri sportivi e mezzi di trasporto che favoriscono un veloce collegamento con diversi quartieri della città.
Prezzo Richiesto: Venduto
Per informazioni: 0657289414 – info@vienove.it
oppure usare modulo Richiesta Informazioni a fianco, sopra la mappa >>
